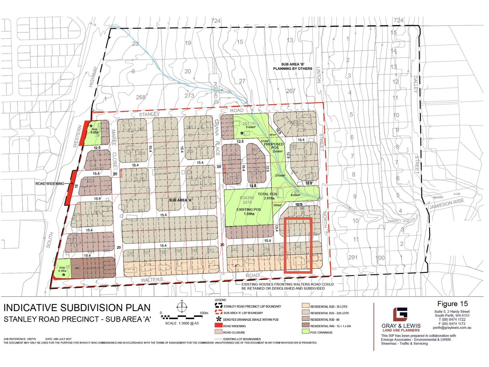
DEVELOPMENT POTENTIAL
Potential for Retain plus 6 blocks or Demolish for 9 blocks ... see indicative subdivision plan
Zoned ‘Urban Development’ under Local Planning Scheme No.3, this lot falls within the ‘Stanley Road Precinct Local Structure Plan’, which identifies the lot as R20 and R25
LINKS
Place offer ... https://www.gatani.com.au/offer
360 Walkthrough ... https://panoraven.com/en/embed/9IyUvFm9MJ
Local structure plan ... https://www.wa.gov.au/system/files/2025-11/stanley_road_precinct_structure_plan-wapc_r.pdf
LOCATION
600m to Byford Community Kindergarten
900m to Byford Primary
1.8km to Byford Secondary College
2.3km to Byford Train Station
SUMMARY
Built in 1979
Dual crossover with vehicle access to rear
Double lock up garage
Alarm system
Solar panels
Ducted evap cooling
Multiple living areas ... open plan living, central family/activity, sunken formal lounge
Large bedrooms with built in robes and ceiling fans
Modern bathrooms
Stylish kitchen with freestanding cooker and dishwasher
Curved undercover patio
Sparkling below ground pool with gazebo
Solar hot water system
Septics
CONTACT
Team Gatani from Heritage Realty
Rob on 0423 214 648
Michelle on 0431 401 808
www.teamgatani.com




































































